Dallas Design Days 2024 Floorplan Maps

Posted by Dallas Market Center on Mar 25, 2024 12:12:24 PM

IHDC

 Interior 1Interior 2.pdfWorld Trade CenterWTC 1.pdf

WTC 2.pdfWTC 3.pdfWTC 4.pdfWTC 5.pdfWTC 6.pdfWTC 9.pdfUntitled

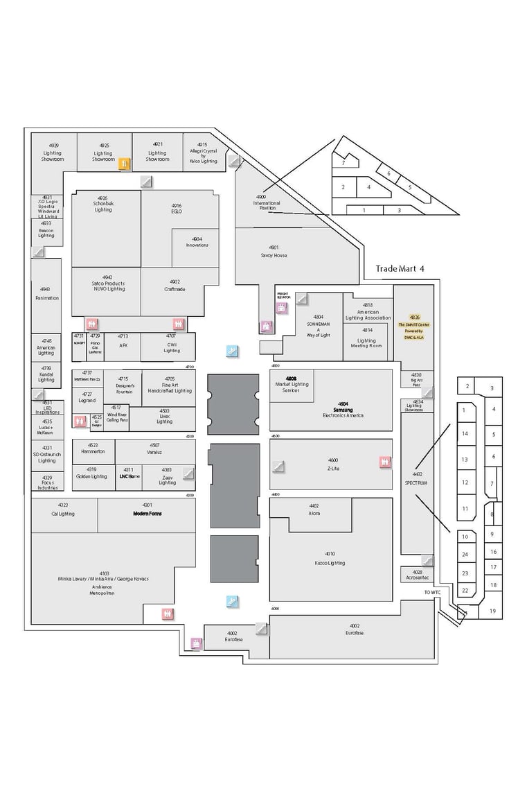
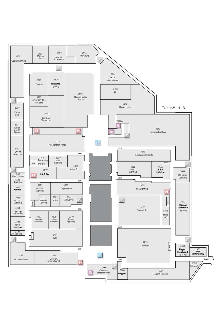
Trade Mart

TM 3.pdfTM 4.pdf